地 址: 河南省巩义市西村工业区
联系人: 庞经理
手 机: 15617617287
15038001853
E_mail: gyltgd@126.com
网 址: http://www.dcczyzsls.com/
http://www.gyltgdc.com/

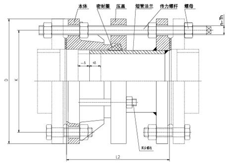
传力接头是泵、阀门,管道等设备与管道连接的新产品,通过全螺栓把它们连接起来,使其成为整体,并有一定的位移量,方便安装。可承受管线的轴向压力。这样就可以在安装维修时,根据现场安装尺寸进行调整,在工作时,不仅提高工作效率,而且对泵、阀们等管道设备起到一定保护作用。
传力接头是泵、阀门,管道等设备与管道连接的新产品,通过全螺栓把它们连接起来,使其成为整体,并有一定的位移量,方便安装。可承受管线的轴向压力。这样就可以在安装维修时,根据现场安装尺寸进行调整,在工作时,不仅提高工作效率,而且对泵、阀们等管道设备起到一定保护作用。
VSSJAF型双法兰松套传力接头适用范围:
VSSJAF型双法兰松套传力接头适用于输送海水、淡水、冷热水、饮用水、生活污水、原油、燃油、润滑油、成品油、空气、煤气、温度不高于250度的蒸汽和颗粒粉状等介质。
VSSJAF型双法兰松套传力接头优点:
1.安装简单方便、方便阀门安装、可承受管线的轴向拉力。
2.该产品采用金属铸造或焊接组成,松套部位选用梯形橡胶密封圈,在压盖和螺栓的作用下。
3.利用橡胶压缩弹性变形原理。迫使密封圈变形于接头本体伸缩管外壁之间进行静密封。
4.金属和密封圈严格按使用性能及用户要求选用。材质外部涂装高强度防腐漆料,各部连接螺栓为 高强度碳钢或不锈钢制作。因为本体与伸缩管之间有一定间隙,使它具有一定的轴向和径向位移。
5.在管道中能有效的补偿和缓解管道和盲板推力,又能便于水泵,阀门的安装维修更换,实为管道安装运行业中最为理想的配套产品。
VSSJAF型双法兰松套传力接头安装简要说明:
VSSJAF型双法兰松套传力接头适用于两边均与法兰连接的管道中,安装时调整产品两端与法兰的安装长度,对角依次均匀拧紧压螺栓,使其成为一个整体,并有一定的位移量,方便安装维修时,根据现场尺寸进行调整在工作时,可以把轴向推力传递至整个管道。

技术参数:
|
公称通径
|
管子外径
|
外形尺寸
|
伸缩量
|
法兰连接尺寸
|
||||||
|
Dw
|
L
|
L1
|
0.6MPa
|
1.0MPa
|
||||||
|
D
|
D1
|
n-d。
|
D
|
D1
|
n-d。
|
|||||
|
65
|
76
|
340
|
105
|
50
|
160
|
130
|
4-¢14
|
185
|
145
|
4-¢18
|
|
80
|
89
|
190
|
150
|
4-¢18
|
200
|
160
|
8-¢18
|
|||
|
100
|
108
|
210
|
170
|
220
|
180
|
|||||
|
114
|
||||||||||
|
125
|
133
|
240
|
200
|
8-¢18
|
250
|
210
|
||||
|
140
|
||||||||||
|
150
|
159
|
265
|
225
|
285
|
240
|
8-¢22
|
||||
|
168
|
||||||||||
|
200
|
219
|
320
|
280
|
340
|
295
|
|||||
|
250
|
273
|
370
|
335
|
12-¢18
|
395
|
350
|
12-¢22
|
|||
|
300
|
325
|
350
|
130
|
65
|
440
|
395
|
12-¢22
|
445
|
400
|
|
|
350
|
377
|
490
|
445
|
505
|
460
|
16-¢22
|
||||
|
400
|
426
|
540
|
495
|
16-¢22
|
565
|
515
|
16-¢26
|
|||
|
450
|
480
|
595
|
550
|
615
|
565
|
20-¢26
|
||||
|
500
|
530
|
645
|
600
|
20-¢22
|
670
|
620
|
||||
|
600
|
630
|
755
|
705
|
20-¢26
|
780
|
725
|
20-¢30
|
|||
|
700
|
720
|
860
|
810
|
24-¢26
|
895
|
840
|
24-¢30
|
|||
|
800
|
820
|
590
|
220
|
130
|
975
|
920
|
24-¢30
|
1015
|
950
|
24-¢33
|
|
900
|
920
|
1075
|
1020
|
1115
|
1015
|
28-¢33
|
||||
|
1000
|
1020
|
1175
|
1120
|
28-¢30
|
1230
|
1160
|
28-¢36
|
|||
|
1200
|
1220
|
1405
|
1340
|
32-¢33
|
1455
|
1380
|
32-¢40
|
|||
|
1400
|
1420
|
1630
|
1560
|
36-¢36
|
1675
|
1590
|
36-¢42
|
|||
|
1500
|
1520
|
1730
|
1660
|
-
|
-
|
-
|
||||
|
1600
|
1620
|
1830
|
1760
|
40-¢36
|
1915
|
1820
|
40-¢48
|
|||
|
1800
|
1820
|
2045
|
1970
|
44-¢40
|
2115
|
2020
|
44-¢48
|
|||
|
2000
|
2020
|
2265
|
2180
|
48-¢42
|
2325
|
2230
|
48-¢48
|
|||
|
2200
|
2220
|
2475
|
2390
|
52-¢42
|
2550
|
2440
|
52-¢56
|
|||
|
2400
|
2420
|
2685
|
2600
|
56-¢42
|
2760
|
2650
|
56-¢56
|
|||